全國咨詢熱線
15725312871

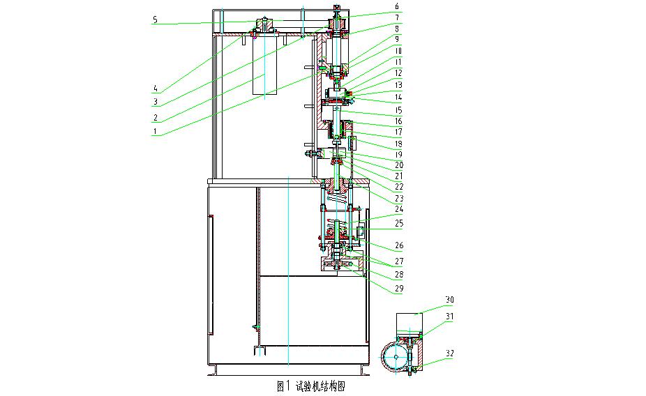
該機(jī)以一定的摩擦形式在一定的接觸壓力下,具有脈寬無級調(diào)速系統(tǒng)可在極低速或高速條件下用來評定潤滑劑金屬塑料,涂層,橡膠,陶瓷,等材料的摩擦磨損性能。...

20
2021-04
18
2021-04
20
2021-04
15
2021-04
20
2021-04
12
2020-11
06
2021-03
09
2018-11
04
2026-01
0531-83628156